江波二本松二丁目

3,780万円

広島県広島市中区江波二本松2丁目7-42-8

広島電鉄江波線「江波」駅徒歩12分

広島電鉄「江波西二丁目」バス停

価格
3,780万円
間取り/建物面積
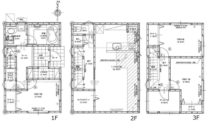
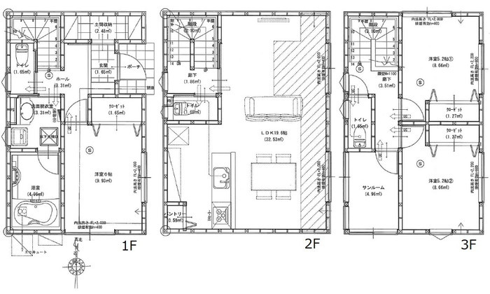
3LDK/104.32㎡
所在地
広島県広島市中区江波二本松2丁目7-42-8
築年
2025年2月(新築)
駐車
交通

広島電鉄江波線江波」駅 徒歩12分

広島電鉄「江波西二丁目」バス停下車 徒歩2分

江波二本松二丁目の基本情報

物件名
江波二本松二丁目
価格
3,780万円
建物面積
104.32㎡
土地面積
25.31坪(83.67㎡~83.70㎡)
築年月
2025年2月(新築)
総戸数
-
所在地
広島県広島市中区江波二本松2丁目7-42-8
交通

広島電鉄江波線江波」駅 徒歩12分

広島電鉄「江波西二丁目」バス停下車 徒歩2分

江波二本松二丁目の詳細情報

設備条件
  • 閑静な住宅地
  • 駐車2台可
設備(その他)
    -
駐車場/月額
有/-
土地権利
所有権
国土法届出
不要
用途地域
第一種住居
取引態様
一般媒介
引渡し
即時

江波二本松二丁目で募集中の物件

  1. 31.55坪 (104.32㎡)

    3,780万円(119.81万円/坪)

  2. 31.55坪 (104.32㎡)

    3,780万円(119.81万円/坪)

江波二本松二丁目

お気軽にお問い合わせください

LINEからお問い合わせ 無料お問い合わせ

株式会社 トライブホーム

082-208-4505

9:00~19:00

(休:無(不定休))