温品七丁目

4,280万円

広島県広島市東区温品7丁目16-12

芸備線「矢賀」駅徒歩32分

広島バス「下温品」バス停

価格
4,280万円
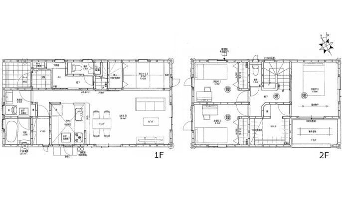
間取り/建物面積
3LDK/102.68㎡
所在地
広島県広島市東区温品7丁目16-12
築年
2025年3月(新築)
駐車
交通

芸備線矢賀」駅 徒歩32分

広島バス「下温品」バス停下車 徒歩4分

温品七丁目の基本情報

物件名
温品七丁目
価格
4,280万円
建物面積
102.68㎡
土地面積
40.61坪(134.25㎡)
築年月
2025年3月(新築)
総戸数
-
所在地
広島県広島市東区温品7丁目16-12
交通

芸備線矢賀」駅 徒歩32分

広島バス「下温品」バス停下車 徒歩4分

温品七丁目の詳細情報

設備条件
  • 閑静な住宅地
  • 駐車2台可
設備(その他)
    -
駐車場/月額
有/-
土地権利
所有権
国土法届出
不要
用途地域
第一種住居
取引態様
一般媒介
引渡し
即時

温品七丁目で募集中の物件

  1. 31.06坪 (102.68㎡)

    4,280万円(137.8万円/坪)

近隣の物件

  1. 広島市東区戸坂長尾台

    4LDK (103.51㎡)

    3,980万円

  2. 広島市東区中山上2丁目

    3LDK (93.85㎡)

    3,580万円

  3. 広島市東区中山中町

    3LDK (104.33㎡)

    4,230万円

  4. 広島市東区温品4丁目

    4LDK (117.89㎡)

    3,878万円

温品七丁目

お気軽にお問い合わせください

LINEからお問い合わせ 無料お問い合わせ

株式会社 トライブホーム

082-208-4505

9:00~19:00

(休:無(不定休))