楽々園三丁目

3,780万円

広島県広島市佐伯区楽々園3丁目12-24

広島電鉄宮島線「楽々園」駅徒歩6分

山陽本線「五日市」駅徒歩17分

広島電鉄「海老園一丁目」バス停

価格
3,780万円
間取り/建物面積
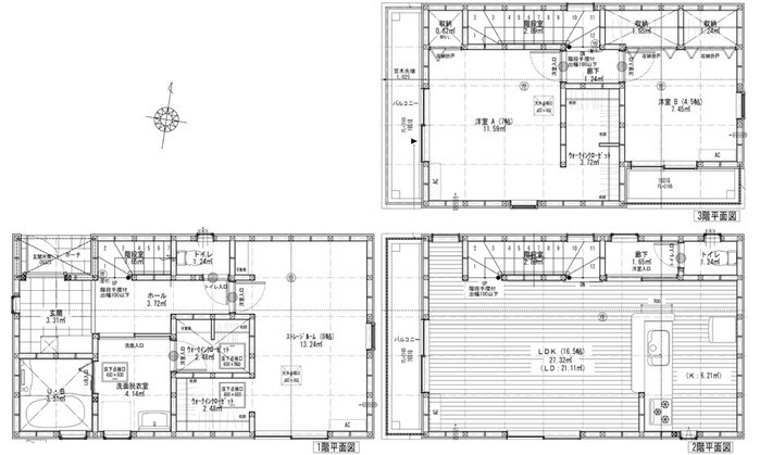
3LDK/99.35㎡
所在地
広島県広島市佐伯区楽々園3丁目12-24
築年
2025年11月(新築)
駐車
交通

広島電鉄宮島線楽々園」駅 徒歩6分

山陽本線五日市」駅 徒歩17分

広島電鉄「海老園一丁目」バス停下車 徒歩2分

楽々園三丁目の基本情報

物件名
楽々園三丁目
価格
3,780万円
建物面積
99.35㎡
土地面積
26.82坪(88.69㎡)
築年月
2025年11月(新築)
総戸数
-
所在地
広島県広島市佐伯区楽々園3丁目12-24
交通

広島電鉄宮島線楽々園」駅 徒歩6分

山陽本線五日市」駅 徒歩17分

広島電鉄「海老園一丁目」バス停下車 徒歩2分

楽々園三丁目の詳細情報

設備条件
  • 駐車2台可
設備(その他)
    -
駐車場/月額
有/-
土地権利
所有権
国土法届出
不要
用途地域
第一種住居
取引態様
一般媒介
引渡し
即時

楽々園三丁目で募集中の物件

  1. 30.05坪 (99.35㎡)

    3,780万円(125.79万円/坪)

近隣の物件

  1. 広島市佐伯区藤垂園

    3SLDK (101.56㎡)

    3,380万円

  2. 広島市佐伯区五日市中央3丁目

    4LDK (97.08㎡)

    3,970万円

  3. 広島市佐伯区五日市中央6丁目

    3LDK (87.07㎡)

    3,580万円

  4. 広島市佐伯区利松3丁目

    4LDK (104.95㎡)

    3,399万円

楽々園三丁目

お気軽にお問い合わせください

LINEからお問い合わせ 無料お問い合わせ

株式会社 トライブホーム

082-208-4505

9:00~19:00

(休:無(不定休))