庚午南二丁目

3,450万円

広島県広島市西区庚午南2丁目24-10

広島電鉄宮島線「草津」駅徒歩12分

広島バス「庚午住宅」バス停

山陽本線「新井口」駅徒歩27分

価格
3,450万円
間取り
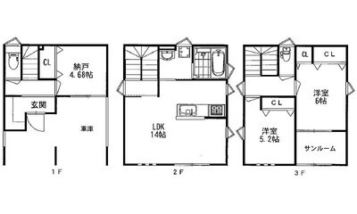
3LDK
土地面積
60.00㎡
所在地
広島県広島市西区庚午南2丁目24-10
交通

広島電鉄宮島線草津」駅 徒歩12分

広島バス「庚午住宅」バス停下車 徒歩2分

山陽本線新井口」駅 徒歩27分

建物面積
104.34㎡
築年月
2024年4月(新築)

イベント情報

  • 住まい探しは不安と疑問がつきものです
    不安と疑問は弊社に任せて住まい見学を100%楽しんでください
    そして現地で「広さ」・「暖かさ」・「心地よさ」を、ぜひ体感して下さい!

    おおよその所要時間や内容は以下になります
    ◎物件見学(30分~)
    ◎ご希望条件のご相談(30分~)
    ◎資金計画のご相談(30分~)

    ≪時間が取れないお客様は≫
    直接現地にお越し頂き、物件を見てそのまま帰れます
    物件見学のみや、相談のみ等
    知りたい情報だけ、という短時間のご案内も可能です
    「今すぐ見たい」にもご対応致します!

    ≪たくさん見たいお客様は≫
    こちらの住まい以外にもお客様のお探しの条件に合う住まいを全てご紹介します
    お客様の状況や希望をしっかりお聞きし
    お客様が想像もしなかったぴったりの住まいをご提案できるかもしれません

    ≪住宅ローン相談会開催中≫
    ・いくら借入が出来るの?
    ・どの位の金利でいくらの支払いになるの?
    ・頭金がないけど購入出来る?
    ・車のローンがまだ残っているけど住宅ローンを組める?

    融資可能金額・金利・団体信用生命保険の種類・その他条件など
    これらは金融機関によって変わってきます

    転職して間もないんだけど?頭金がほとんどないんだけど?
    年収が低いんだけど?女性単身なんだけど?他社で一度断られたんだけど?
    など、住宅ローンでお悩みの方、どんなお悩みでもお気軽にご相談ください!

    車のローンや、カードローン等他の借入がある方も大丈夫!
    住宅ローン+500万円迄融資可能なので、他の借入も低金利の住宅ローンにまとめられます!
    物件が決まる前に仮審査のみの受付もしております

    ≪お仕事が忙しくて時間の取れない方も安心≫
    お仕事帰りの夜間や早朝等、対応出来ますのでお気軽にご相談下さい

物件の特徴

  • TVモニタ付きインターホン

  • カウンターキッチン

  • 浴室乾燥機

セールスポイント

◆お問い合わせ頂き、住宅ローンのご相談・事前審査をして頂いた方に5000円分アマゾンギフト券プレゼント!
◆さらに御成約になったお客様は10万円キャッシュバック!

担当者のコメント

お問い合わせ頂き、住宅ローンのご相談・事前審査をして頂いた方に5000円分アマゾンギフト券プレゼント
さらに御成約になったお客様には10万円分プレゼント

平日・休日・祝日、朝・夜!いつでもご見学いただけます
◆草津電停徒歩12分
◆ガス乾燥機乾太くん付
◆駐車2台可
◆南西向きで陽当良好

住宅ローン借り入れ3450円の場合 月々89938円
※変動金利・35年払い・金利0.525%・ボーナス払い無しの場合
現在の家賃+駐車場代と比べてみてください

◎お仕事が忙しくてなかなか時間の取れない方
夜間や早朝等、対応出来ますのでお気軽にご相談下さい

他社掲載物件も纏めてご案内・資料送付可能です

基本情報

販売戸数
-
総戸数
-
間取り / 詳細
3LDK
向き
-
建物面積(坪数)
104.34㎡(31.56坪)
土地面積(坪数)
60.00㎡(18.14坪)
建ぺい率 /
容積率
60%/160%
築年月
2024年4月(新築)
駐車場 /
月額料金
有 -
土地権利
所有権
土地
(敷金 / 保証金)
- / -
建物構造
木造 / 3階建
傾斜地部分面積
-
路地状敷地
-
私道負担面積
-
セットバック
高圧線下面積
-
施工会社
-
用途地域
第一種住居
地目 / 地勢
- / -
接道状況
-(南西 公道 4.0m)
国土法届出要否
不要
都市計画
市街化区域
総区画数 /
販売区画数
-/-
現況
完成済み
その他
法令上の制限
-
取引態様
一般媒介
引渡し
即時
取引条件の
有効期限
2026年01月25日

設備条件

設備条件
  • 陽当り良好 / 閑静な住宅地 / 都市ガス / 公営水道 / 公共下水 / 駐車2台可 / 食器洗い乾燥機 / システムキッチン / カウンターキッチン / 浴室乾燥機 / 温水洗浄便座 / トイレ2ヶ所 / 浴室1坪以上 / 床下収納 / ウォークインクロゼット / TVモニタ付インターホン / 複層ガラス
設備(その他)
    -

その他

物件番号
98768607
管理コード
-
建築確認番号
-
情報更新日
2026年01月11日
次回更新予定日
2026年01月25日
取扱会社
  • 株式会社 トライブホーム
  • 広島県広島市中区上幟町1-15 KAMINOBORI一階
  • TEL:082-208-4505
  • 広島県知事 (2) 第010866号

支払いシミュレーション

月々の支払額
9.6
購入希望物件価格
万円
頭金
万円
金利
%
返済額(ボーナス1回分)
万円
返済期間

※ボーナスは自動で年2回分で計算されます。

近隣の物件

  1. 井口4丁目

    広島市西区井口4丁目

    4LDK (98.39㎡)

    4,030万円

  2. 高須三丁目

    広島市西区高須3丁目

    3LDK (84.86㎡)

    3,490万円

  3. 古江西町

    広島市西区古江西町

    3LDK (99.63㎡)

    4,290万円

  4. 南観音一丁目

    広島市西区南観音1丁目

    3LDK (96.15㎡)

    4,780万円

庚午南二丁目

庚午南二丁目

3,450万円

-

3LDK(104.34㎡)

お気軽にお問い合わせください

LINEからお問い合わせ 無料お問い合わせ

株式会社 トライブホーム

082-208-4505

9:00~19:00

(休:無(不定休))